Popis
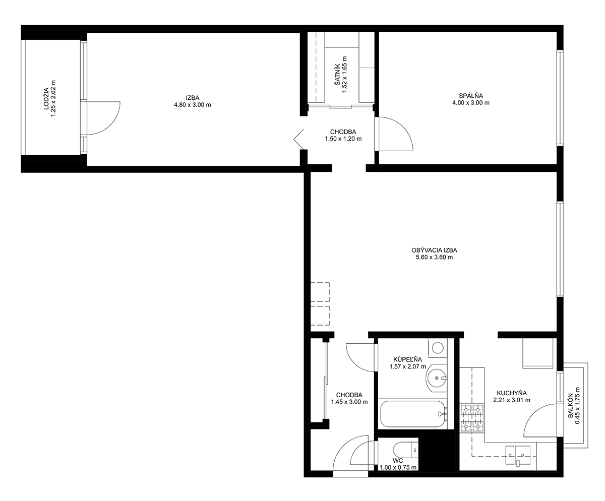
Na predaj útulný 3-izbový byt na ul. Boženy Nemcovej, ktorý sa nachádza vo vyhľadávanej lokalite v časti Košice I – Sever.
•osobné vlastníctvo
•poschodie: 2.p/11p.
•výmera 71 m²
•1 x balkón a 1 x loggia
•orientácia na dve svetové strany: JV / SZ
•pivnica 3 m²
ČIASTOČNÁ REKONŠTRUKCIA v roku 2011:
-menené plastové okná s vertikálnymi žalúziami v celom byte, omietky, drevené podlahy 2 izbách a plávajúca podlaha v 1 izbe, novšia kuchynská linka so zabudovanými spotrebičmi, drevené obložkové zárubne + interiérové dvere, nová elektroinštalácia v jadre a kuchyni, veľký šatník medzi dvoma izbami
Adresa
Otvoriť v Google mapách-
Adresa: Boženy Němcovej 5
-
Mesto: Košice
-
PSČ: 04011
-
Oblasť: I - Sever
Detaily
-
Označenie KE-0005
-
Cena 173 000 €
-
Výmera 71 m²
-
Izieb 3
-
Garáž 0
-
Typ 3-izbový byt, Byt
Ďalšie detaily
-
Hypotéka možná
-
Rekonštrukcia v roku 2011
-
Balkón a loggia 1 x balkón a 1 x loggia
-
Pivnica 3 m²
-
Orientácia JV / SZ
360° Virtuálna prehliadka
Video
Hypotekárna kalkulačka
Mesačne
-
Záloha
-
Výška úveru
-
Mesačná splátka hypotéky
-
Mesačné poplatky spoločenstvu vlastníkov
Podobné nehnuteľnosti
2,5-izbový byt ul. Hlinkova – KOŠICE
- 850 €/mesiac
2-izbový byt ul. Palkovičova – KOŠICE
- 175 000 €
2-izbový byt ul. Študentská – KOŠICE
- 132 000 €
1-izbový byt ul. Tolstého – KOŠICE
- 104 990 €
